圓形振動分級篩簡介
YZ型圓形旋轉振動篩是一種篩分設備。該機由底座上的普通電機通過橡膠聯軸器帶動激振器轉動,使篩機產生水平圓運動和繞水平軸搖擺振動的空間復合運動。圓形振動分級篩中料層受剪切,并上下翻滾,細顆料迅速接觸篩面,過孔分級。
圓形振動分級篩特點
YZ型圓形旋轉振動篩具有結構簡單、功耗少、噪音小、篩分效率高等特點,可滿足多級篩分的工藝要求,該機物料運動軌跡和振動力大小可進行調整。篩網有撞擊裝置,不易堵塞,張緊容易,調換方便,使用壽命長,排出方向可隨意改變,運載荷對安裝基礎傳遞小,安裝調試簡單方便。

圓形振動分級篩應用
該機用于干濕、粗細、輕重不同的各種物料的篩分作業,亦可用于固液分離、廢污水處理等,廣泛用于化工、冶金、建材、陶瓷、造紙、醫藥、食品和飼料加工等各行各業的生產流水線。
技術參數
| 型號 | 篩網直徑(mm) | 處理量(t/h) | 振動頻率(min-1) | 電動功率(kw) | 重量(kg) | 備注 |
| YZ-1500 | Ф1500 | 9-14 | 930 | 2.2 | 750 | 處理量按標準物料河砂計算(1.67t/m3)選型時按處理物料比重換算 |
| YZ-1000 | Ф1000 | 4-6 | 930 | 1.1 | 500 | |
| YZ-800 | Ф800 | 2-4 | 930 | 0.75 | 400 | |
| YZ-600 | Ф600 | 1.5-2 | 1450 | 0.75 | 300 | |
| YZ-400 | Ф400 | 1-1.5 | 1450 | 0.25 | 160 |
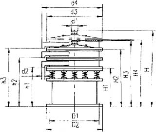
外型尺寸:
| 型號 | d1 | d2 | d3 | d4 | D1 | D2 | h1 | h2 | h3 | H1 | H2 | H3 | H4 | H | 有效面積 (m2) |
| YZ-1500 | 280 | 200 | 1650 | 2280 | 1420 | 1450 | 640 | 830 | 1020 | 660 | 1040 | 1300 | 1230 | 1490 | 1.77 |
| YZ-1000 | 220 | 140 | 1120 | 1520 | 975 | 1040 | 565 | 695 | 825 | 580 | 840 | 1040 | 970 | 1170 | 0.74 |
| YZ-800 | 200 | 130 | 850 | 1160 | 780 | 850 | 540 | 665 | 790 | 560 | 810 | 950 | 935 | 1075 | 0.44 |
| YZ-600 | 130 | 110 | 710 | 980 | 610 | 660 | 480 | 600 | 720 | 490 | 730 | 850 | 850 | 970 | 0.265 |
| YZ-400 | 120 | 100 | 470 | 700 | 400 | 445 | 435 | 525 | 615 | 440 | 620 | 700 | 700 | 780 | 0.1 |
訂貨須知
該機可配二~四層分級篩網,訂貨時請注明型號規格,所需配備篩網要求、材料、孔狀、目數、訂貨數量。